Rekuperator FRAPOL ONYX SKY 1500

25599,00 zł - Zapytaj o rabat
25599.00
Dodaj do schowka
UWAGA – ze względu na obecną sytuację rynkową prosimy o sprawdzenie przed zamówieniem dostępności danego produktu. Niestety u wielu producentów występują poważne opóźnienia w dostawach.
Opis
Parametry techniczne
Pliki
Dostawa
Zwrot
OnyX Sky 1500 to klasyczna centrala podwieszana przeznaczona do wentylacji niewielkich obiektów usługowych, biurowych i przemysłowych.

Maksymalny strumień powietrza (100 Pa) m3/h 1498
Maksymalny pobór mocy wentylatorów W 1060
Moc nagrzewnicy wstępnej W max.4000
Znamionowe napięcie zasilania 230V AC/50Hz
Typ bezpiecznika- nadprądowy, wył. instalacyjny C6
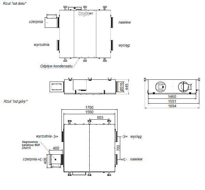
Wymiary zewnętrzne (szer. x wys. x dł.) mm 1670 x 445 x 1700
Wymiary przyłączy wentylacyjnych (średnica) mm 315
Waga kg 172
Klasa zastosowanych filtrów - G4
Wymiary filtra (szer. x wys.) mm 592 x 287 x 200; 592 x 287 x 300
Stopień ochrony - IP 40
Klasa izolacji urządzenia - I
By-pass - 100%, Standard
Automatyka - Sterownik Frapol SMART

Warunki środowiskowe w pomieszczeniu technicznym

Zakres temperatur pracy C 5-45
Dopuszczalna wilgotność % 60




wysyłka gratis

Zwrot towaru możliwy do 14 dni.

Szczegółowy opis
Opinie (0)

Rekuperator OnyX Sky 1500 jest urządzeniem stanowiącym główny element systemu wentylacji nawiewno-wywiewnej z wysokosprawnym odzyskiem ciepła. Zapewnia ciągły dopływ świeżego powietrza i usuwanie powietrza zużytego, jednocześnie redukując przy tym poziom dwutlenku węgla oraz wilgoci. Poprzez ciągłą filtrację redukuje ponadto stężenie szkodliwych pyłów w wentylowanych pomieszczeniach.

Układ sterujący pracą central wentylacyjnych OnyX umożliwia m.in. konfigurację kilku trybów użytkownika, harmonogramu czasowego, regulację przepustnicy GWC, kontrolę bypassu (freecooling), co pozwala na możliwie energooszczędną pracę systemu wentylacji mechanicznej. Urządzenia są standardowo wyposażone w zadajnik ścienny Basic (opcjonalnie kolorowy wyświetlacz 5” Advanced), oraz intuicyjne, przyjazne dla użytkownika oprogramowanie. Jednostki mogą być opcjonalnie doposażone o moduł internetowy ecoNET pozwalający na sterowanie parametrami pracy za pośrednictwem aplikacji w smartfonie. Dodatkowo ciągła rejestracja danych z urządzenia umożliwia zdalne wykrywanie problemów serwisowych. Kolejnym elementem opcjonalnym może być moduł utrzymania stałej wydajności (Constant Flow), który utrzymuje zadany strumień powietrza nawiewanego i wywiewanego niezależnie od stopnia zużycia filtrów powietrza i zmiennych warunków atmosferycznych.

OnyX Sky 1500 to centrala podwieszana o wysokości 445 mm.



Nie dodano jeszcze żadnej opinii o tym produkcie.
Moja ocena:

Podobne produkty