Rekuperator FRAPOL ONYX SKY 750
Maksymalny strumień powietrza (100 Pa) m3/h 990
Maksymalny pobór mocy wentylatorów W 337
Moc nagrzewnicy wstępnej W max.1800
Znamionowe napięcie zasilania 230V AC/50Hz
Typ bezpiecznika- nadprądowy, wył. instalacyjny C10
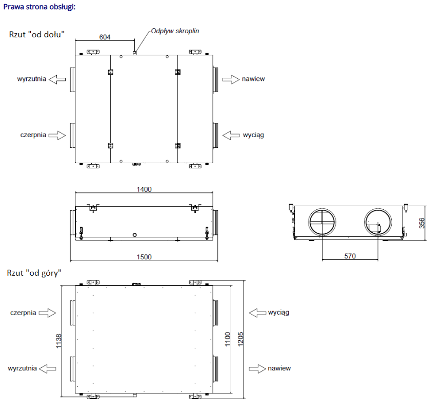
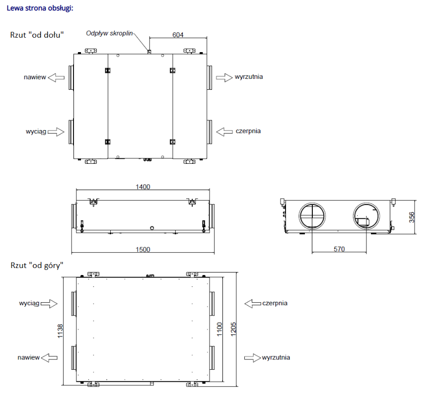
Wymiary zewnętrzne (szer. x wys. x dł.) mm 1100 x 345 x 1520
Wymiary przyłączy wentylacyjnych (średnica) mm 250
Waga kg 134
Klasa zastosowanych filtrów - G4
Wymiary filtra (szer. x wys.) mm 2 x 400 x 180 x 25
Stopień ochrony - IP 40
Klasa izolacji urządzenia - I
By-pass - 100%, Standard
Automatyka - Sterownik Frapol SMART
Warunki środowiskowe w pomieszczeniu technicznym
Zakres temperatur pracy C 5-45
Dopuszczalna wilgotność % 60


wysyłka gratis
Zwrot towaru możliwy do 14 dni.